YUVO 70

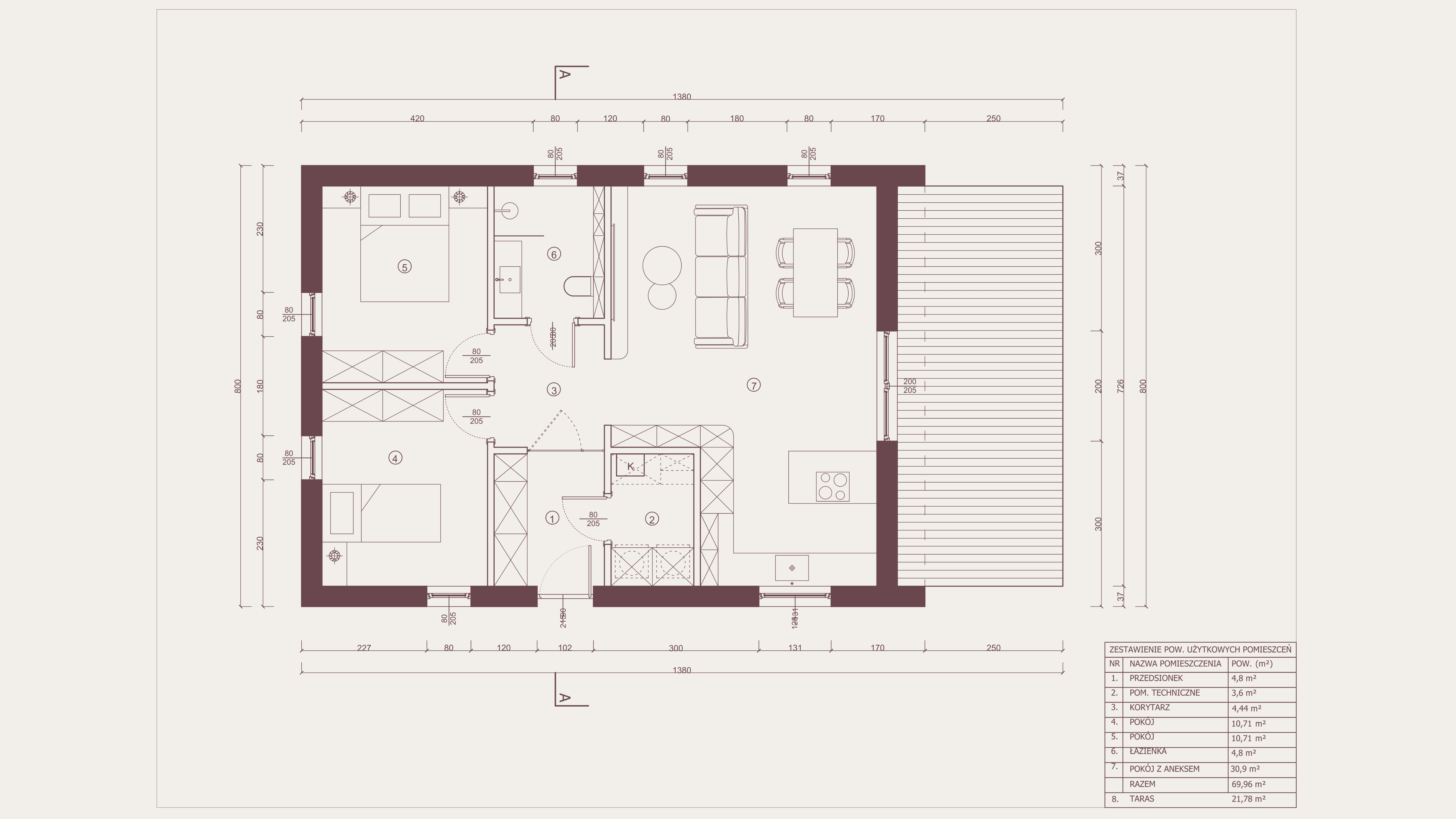
YUVO 70 to parterowy dom, który daje więcej przestrzeni, niż sugeruje jego metraż. Ma 69,96 m² powierzchni użytkowej i taras o powierzchni 21,78 m², który naturalnie wydłuża strefę dzienną i porządkuje rytm życia w domu.

Układ jest prosty i bardzo czytelny: część prywatna została dyskretnie oddzielona od dziennej funkcjonalnym korytarzem (4,44 m²), dzięki czemu dom dobrze działa zarówno dla 1–2 osób, jak i dla rodziny 3-osobowej. W środku znajdują się dwie ustawne sypialnie po 10,71 m² oraz łazienka 4,8 m².

Sercem domu jest salon z aneksem kuchennym 30,9 m², w którym swobodnie mieści się duży stół, wygodna strefa wypoczynku i kuchnia z wyspą, a dodatkowo przewidziano miejsce na kozę lub kominek z wyprowadzeniem przewodu na zewnątrz. Na co dzień docenisz też praktyczne zaplecze: przedsionek 4,8 m² oraz pomieszczenie techniczne 3,6 m², które może pełnić funkcję pralni lub spiżarni.

Dom posiada również właz na nieużytkowe poddasze, które daje dodatkową przestrzeń do przechowywania bez zwiększania metrażu. Dzięki w pełni parterowemu układowi — bez schodów i „trudno dostępnych” stref — wszystko jest pod ręką: wygodniej, bezpieczniej i łatwiej w utrzymaniu porządku.

Projekt: YUVO 70

Pow. użytkowa: 69,96m²

Liczba sypialni: 2

Kompaktowy dom parterowy

Powierzchnia pomieszczeń:
* Salon z aneksem: 30,9 m²
* Sypialnia 1: 10,71 m²
* Sypialnia 2: 10,71 m²
* Korytarz: 4,44 m²
* Łazienka: 4,8 m²
* Pomieszczenie techniczne: 3,6 m²
* Przedsionek: 4,8 m²

Do pobrania:
* Rzuty YUVO 70.pdf
* Katalog YUVO 70.pdf

TOP