YUVO 100

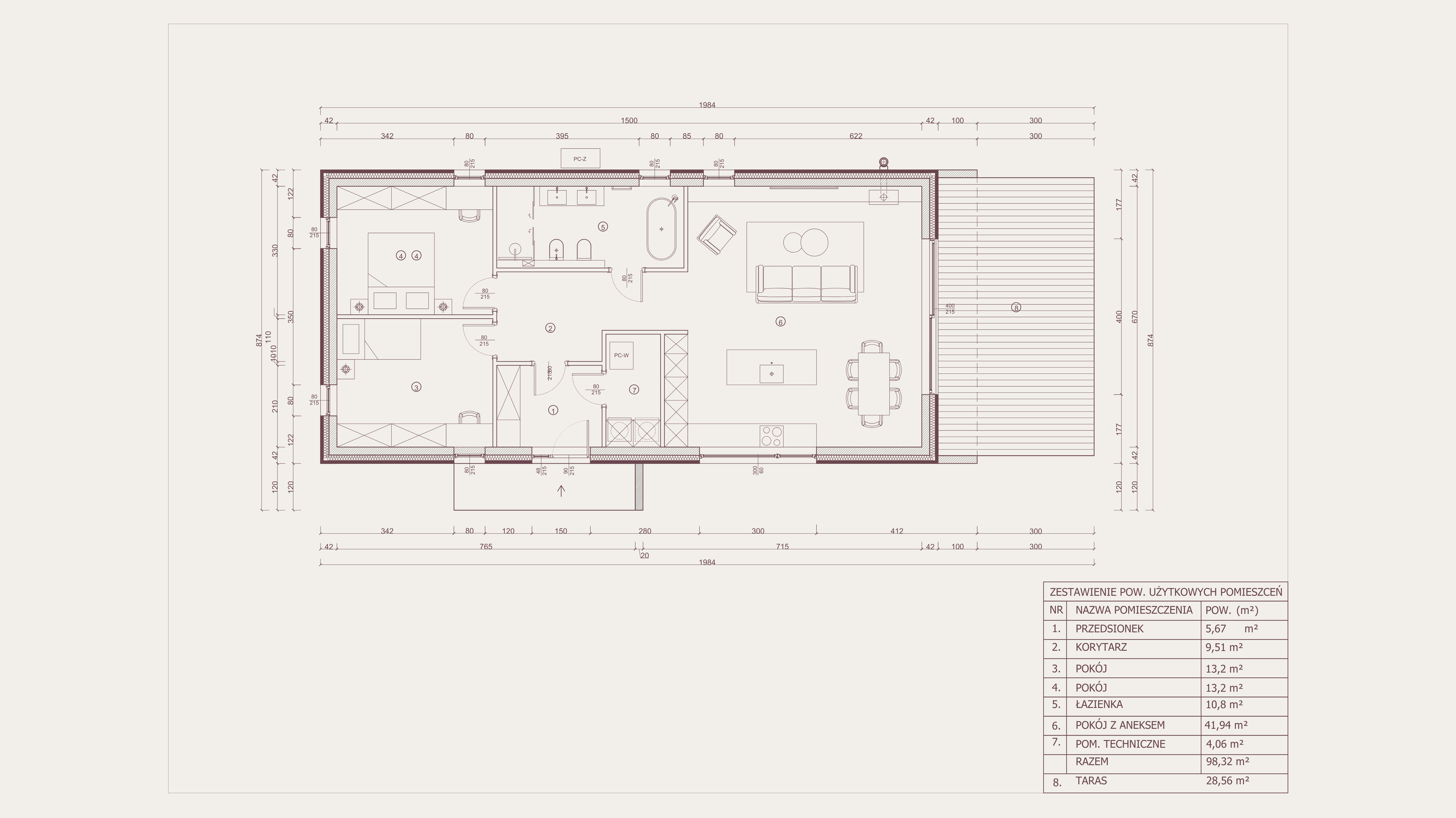
YUVO 100 to dom, który daje więcej — przestrzenią, światłem i spokojem. Ma 98,32 m² powierzchni użytkowej oraz taras o powierzchni 28,56 m², który naturalnie przedłuża salon i organizuje rytm życia wokół domu. W założeniu jest kompaktowy, ale w odczuciu wyraźnie „większy” dzięki otwartej strefie dziennej i czytelnemu podziałowi funkcji.

Sercem projektu jest katedralna strefa dzienna: salon z aneksem o powierzchni 41,94 m² z przeszkleniami aż do połaci dachu i przestrzenią otwartą do sufitu. Układ przewiduje miejsce na kuchenną wyspę, dużą strefę wypoczynku, rodzinny stół oraz kozę lub kominek. Dom został zaprojektowany dla niedużej rodziny lub pary, która oczekuje wysokiego komfortu bez komplikowania codzienności — dla osób ceniących prostotę, jakość i przewidywalność.

Część prywatna jest wyraźnie oddzielona od dziennej korytarzem (9,51 m²), co daje spokój i prywatność, a dwie ustawne sypialnie po 13,2 m² zapewniają wygodę bez „ciasnych kompromisów”. Na uwagę zasługuje również pokój kąpielowy 10,8 m² z miejscem na wannę, prysznic i dwa stanowiska umywalek — z możliwością podziału na dwie łazienki, jeśli taki scenariusz pasuje do stylu życia.

Całość dopełnia praktyczne zaplecze: pomieszczenie techniczne 4,06 m², które może pełnić funkcję pralni, spiżarni lub schowka, oraz właz na nieużytkowe poddasze, dający dodatkową przestrzeń do przechowywania bez zabierania metrażu parteru.

Projekt: YUVO 100

Pow. użytkowa: 98,32m²

Liczba sypialni: 2

Dom parterowy z przestrzenią katedralną

Powierzchnia pomieszczeń:
* Salon z aneksem: 41,94 m²
* Sypialnia 1: 13,2 m²
* Sypialnia 2: 13,2 m²
* Korytarz: 9,51 m²
* Łazienka: 10,8 m²
* Pomieszczenie techniczne: 4,06 m²
* Przedsionek: 5,67 m²

Do pobrania:
* Rzuty YUVO 100.pdf
* Katalog YUVO 100.pdf

TOP